Markus Kornmüller
Architekturbüro
Wohnen
Gewerbe
Öffentliche Bauten
Wettbewerbe
Bausachverständiger & Baugutachter
Über uns
Kontakt
Jobs
Impressum
Datenschutz
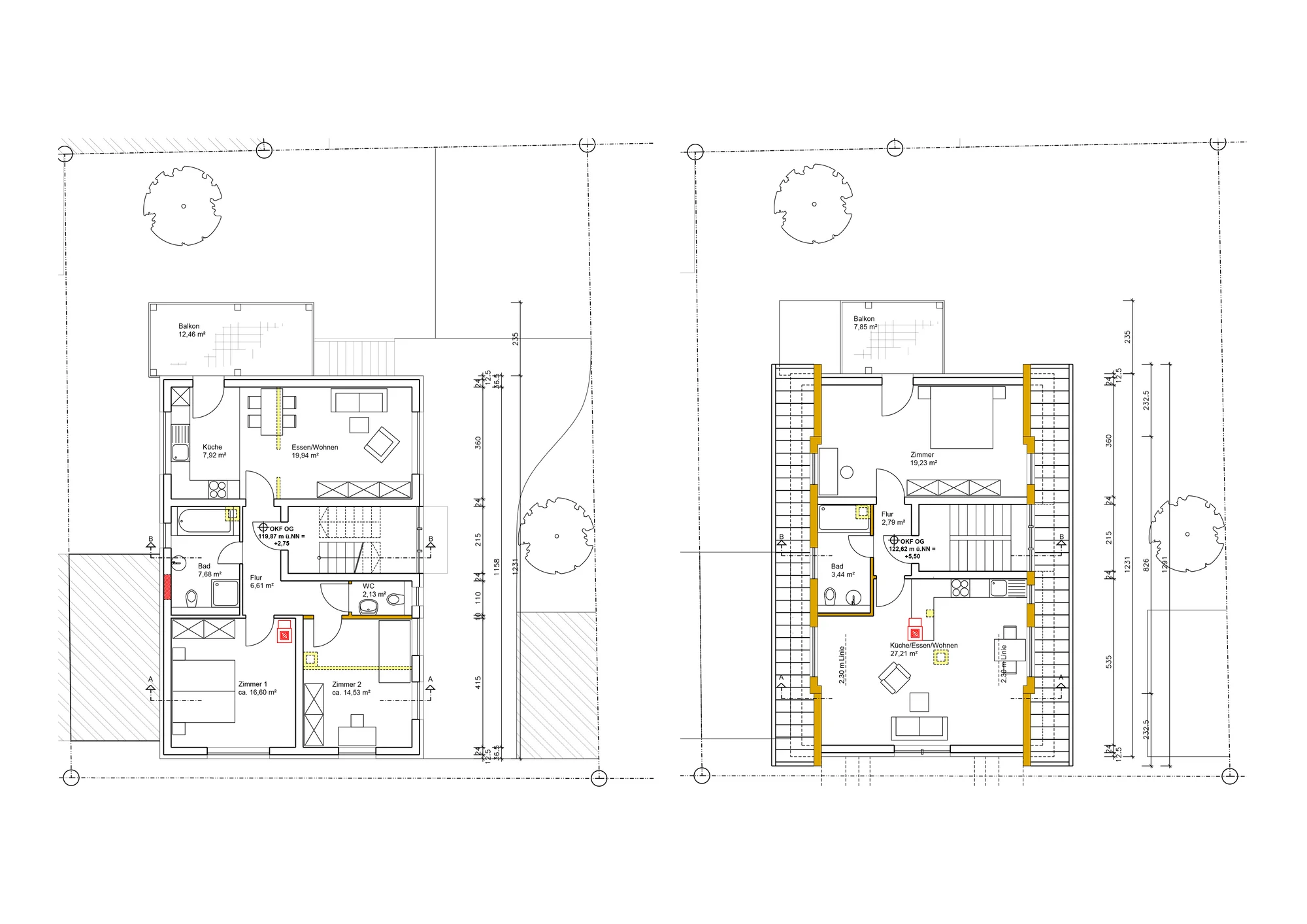
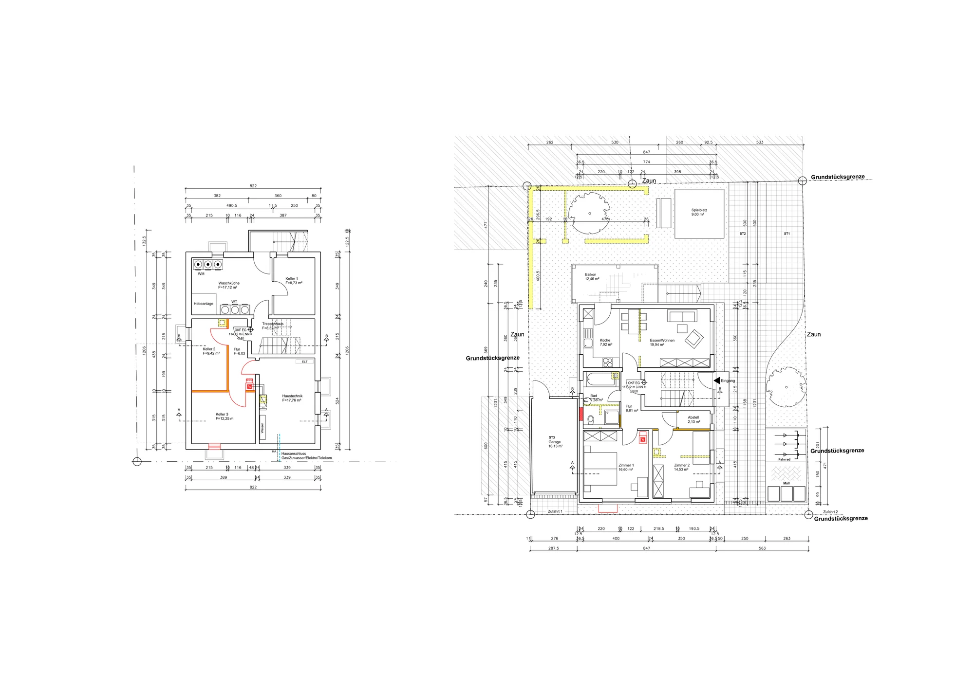
Umbau 3-Familienhaus
Rheinstetten